ニュー桂和ビル8階12号【バー・スナック向け物件】TENANTS
【大人気10坪前後のバー/スナック向け物件】
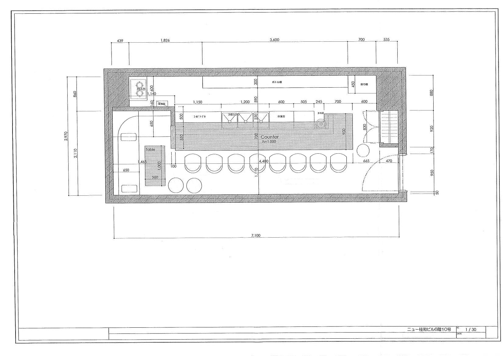
客席が見渡せる為、お一人様でも営業しやすい内装でございます!内装工事もご相談賜りますので、お早めにお問合せ下さい。
- 居抜き物件
- 24時間出入り
- 条件相談可
物件概要
| 物件名 | ニュー桂和ビル8階12号【バー・スナック向け物件】 |
|---|---|
| 物件番号 | 104-812 |
| 住所 | 札幌市中央区南5条西6丁目9-3 |
| 交通 | 地下鉄南北線すすきの駅 徒歩5分 |
| 階数 | 8階/9階建 |
| 面積 | 30.446m²(9.210坪) |
| 賃料 | 121,000円 |
| 敷金 | 200,000円 |
| 契約期間 | 2年間 |
| 現状 | 居抜き |
| 設備・条件 | カウンター、ボックス席、集中冷暖房、男女別共用トイレ |
| 空調 | 集中 |
| 引渡し/入居時期 | 即入居可 |
| 周辺環境 | |
| 更新日 | 2022年6月2日 |
| 詳細情報 | ※表示されている賃料以外に別途固定費が発生致します。(冷暖房費¥28,369、排水管清掃費¥2,200、害虫駆除費¥1,100、塵芥処理費¥3,850 製氷機貸与料¥10,560/25キロ~、コールドテーブル貸与料¥4,400 税込表記 ) |
案内図
お問い合せ・ご相談はこちらから

最近見た物件
会社概要







