南円山シャトー桂和 201号室MANSION
人気の南円山地区
徒歩圏内に小学校・中学校、公園もあり、子育てに優しい落着いた住環境です。住人の暮らしを守る24時間マンションセキュリティ。
- 南向き
- 駐車場有
- 2階以上
- 3LDK
物件概要
| 物件名 | 南円山シャトー桂和 201号室 |
|---|---|
| 物件番号 | 212-701 |
| 住所 | 札幌市中央区南7条西18丁目3番5号 |
| 交通 | 市電「西線9条旭山公園通駅」 徒歩7分 JRバス「旭山公園18丁目停」 徒歩2分 |
| 階数 | 2階/10階建 |
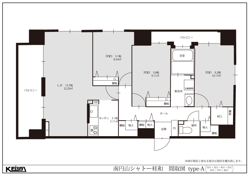
| 間取り | 3LDK |
| 面積 | 80.430m²(24.330坪) |
| 賃料 | 117,000円 |
| 敷金 | 礼金1ヶ月 |
| 管理費 | 9,000円 |
| 契約期間 | 2年間 |
| 現状 | 退去予定 |
| 設備・条件 | オートロック・・宅配BOX・幅広バルコニー・24時間専用ごみ庫・省エネ給湯ecoジョーズ・追炊機能付きユニットバス・専用トランクルーム・ウォークインクローゼット・ロードヒーティング /その他諸費用:町内会費月額200円(非課税)/退去時費用:室内清掃料40,000円(税別)、水廻り消毒清掃費用25,000円(税別)、シリンダー交換費用6,000円(税別)、エコジョーズ暖房回路水抜き費用12,000円(税別)、保証会社利用必須 |
| 引渡し/入居時期 | 相談 |
| 構造 | RC造 |
| 保険 | 火災保険2年 |
| 周辺環境 | 【徒歩1分圏内】愛育保育園・なかよし公園【徒歩3分圏内】南九条郵便局・セブンイレブン・ファミリーマート【徒歩4分圏内】南円山医院【徒歩5分圏内】東光ストア・旭山公園地区センター【徒歩6分圏内】つぼみ幼稚園【徒歩7分圏内】サッポロドラッグストア・サンドラッグ【徒歩8分圏内】北洋銀行・北海道銀行【徒歩9分圏内】旭ヶ丘こどもクリニック |
| 築年数 | 2015年3月 |
| 部屋向き | 南 |
| 天井高 | 0.0m |
| 警備 | 巡回 |
| 更新日 | 2024年10月15日 |
| 詳細情報 | 省エネ給湯器ecoジョーズ(都市ガス)・24h専用ゴミ庫・宅配ボックス・トランクルーム・駐車場・駐輪場・ロードヒーティング・エレベーター(1基9人乗)・ウォシュレット・バストイレ別・追炊機能付ユニットバス・対面キッチン・幅広バルコニー・ウォークインクローゼット・カラーモニター付インターフォン |
案内図
お問い合せ・ご相談はこちらから

最近見た物件
会社概要







